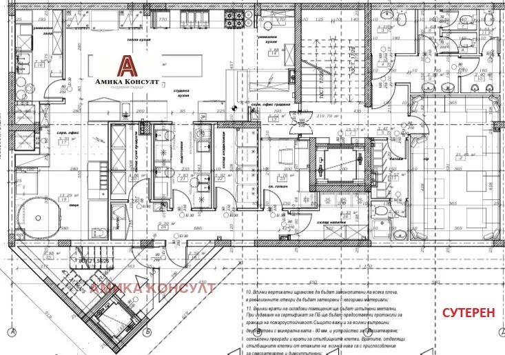
Предлагаме на Вашето внимание нашата най добра оферта за напълно оборудвано, и климатизирано работещо заведение с всички необходими разрешителни- категоризация находящо се в самостоятелна офис сграда!!! Заведението е разположено на три нива, като има следното разпределение: Сутерен-напълно оборудвана кухня със всичко необходимо за работа, складови помещения, офис, 3бр.санитарен възел, Vip зала за частни мероприятия разполагаща с 20 бр. седящи места, стълбище, асасньор, авариен изход, техническо помещение. 1-Ви етаж на кота 0,00 метра-партер: Основна зала със зимна градина разполагаща с около 100 бр. седящи места, санитарен възел, авариен изход, стълбище, асансьор, вход за зареждане, лятна градина разполагаща с около 110 бр. седящи места: 2-ри етаж: Основна зала с около 50бр.седящи места, авариен изход, стълбище, асансьор, Детски клуб, 4бр. санитарни помещения, балкон, тоалетна за инвалиди. Заведението материализира визията за модерно градско луксозно изпълнение, функционалност и удобство, спокойствие и сигурност, зелена околна среда и комуникативно местоположение с 24 часово видеонаблюдение !!! Огледи с предварителна уговорка и подписване на протокол за оглед !!!
1 / 15

































Удобство, Илинден, София
€1,780,000 / 3,481,377 лв.
(€2,469 / 4,829 лв. / кв.м)
Характеристики
квадратура
година на строеж
Вид строителство
Описание
Прочети още
Ипотечен кредитен калкулатор
София Илинден propertyType.amenitys
Зареждаме...
