ПРЕД АКТ 15 !!! МОДЕРНА ВИЗИЯ !!! В БЛИЗОСТ ДО МЕТРОСТАНЦИЯ МЛАДОСТ 4 И БИЗНЕСПАРК !!!Хоум Ту Ю представя на Вашето внимание тристаен апартамент в новострояща се жилищна сграда в кв. Младост 4, състояща се от двустайни, тристайни и четиристайни апартаменти, подземни гаражи и паркоместа. Проектът се характеризира с отлично качество на строителство и първокачествени материали, които гарантират дълготрайност и комфорт. Отличните възможности за финансиране и одобрението на инвеститора от страна на абсолютно всички банки допринасят за атрактивността на комплекса и изключително лесното финансиране.Локацията, в която проекта е разположен, допринася с това да имате бърз достъп до Околовръстен път, Бизнес парк, Природен Парк Витоша, автобусни линии и метростанция.Ако желаете да закупите имот в сградата, обадете се СЕГА и цитирайте следния код : 127670

Вход
Или
Все още нямаш профил?
Създай профил
1 / 5













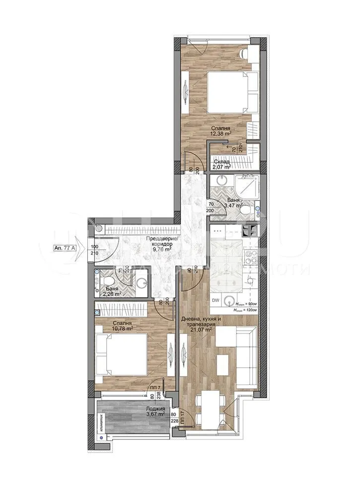
3-стаен, Младост 4, София
€206,280 / 403,449 лв.
(€2,242 / 4,385 лв. / кв.м)
Характеристики
квадратура
брой стаи
година на строеж
етаж
Особености на имота
- С гараж
- Детски градини
Описание
Прочети още
Наблизо има
В непосредствена близост се намират:
Банкомат
658м
Ресторант
640м
Аптека
Медея717м
Паркинг
72м
Кафене
Onda160м
Транспорт
Най-близки спирки на градски транспорт до адреса:
Метро
Автобусни линии
Трамвайни линии
Училища и детски градини
Детски градини
Начални
Основни
Средни
Име
Адрес
Ясла
Разстояние
Ипотечен кредитен калкулатор
София Младост 4 Тристаен апартамент
