Продаваме интересен имот, подходящ за покупка с инвестиционна цел.
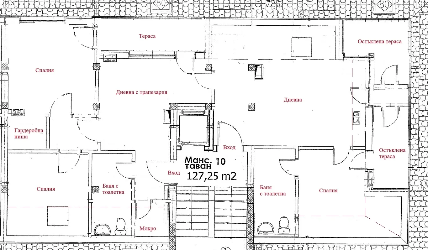
Съгласно документ за собственост, имотът представлява Самостоятелен обект – Мансарден апартамент (таван), със застроена площ от 127,25м2.
Още при строителството е направено преустройство, като разпределението е на две двустайни жилища, с цел отдаването им под наем.
Имотът е самостоятелен на етажа, в добро състояние е, но и с нужда от козметичен ремонт.
Отоплението и топлата вода са решени, чрез индивидуални газови коплета, за всяко от жилищата, като допълнително има монтирани електрически бойлери както и солар на покрива, за подгряване на вода.
Сградата, в която се намира е въведена в експлоатация през 2011-та година, с добре поддържани общи части е и се намира на ул. „Йордан Стубел“ 19.
Още наши оферти можете да намерите на www.universi.bg

















