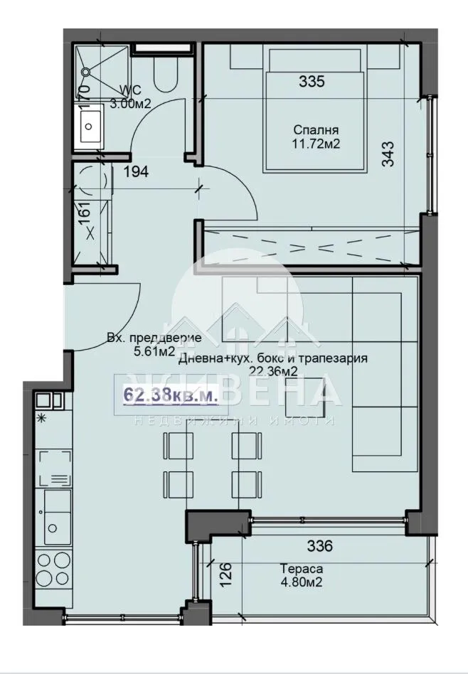
Агенция Живена продава панорамен двустаен апартамент с обща площ 62.38 кв.м в малък затворен комплекс в м-т Свети Никола. Конкретният апартамент е разположен на 2-ри етаж в 4-етажна нова сграда с асансьор. Разпределението на имота е следното: коридор, дневна с трапезария и кухня (22.36 кв.м), спалня (11.72 кв.м), баня с тоалетна и тераса (4.8 кв.м). Изложението му е източно и се разкрива нескриваема гледка към морето и града. Към имота има избено помещение с площ 2.7 кв.м. Апартаментите ще се издават в степен на завършеност по БДС, на фина замазка и шпакловка. За проекта - строителството е започнало и ще бъде реализиран до края на 2027 г. Комплексът ще се състои от 3 сгради с по 7 апартамента. Сградите в комплекса са проектирани със съвременен дизайн, с модерни общи части, 5-камерна дограма, озеленен двор. Сградите ще разполагат с луксозни асансьори, фасадата ще е с топлоизолация. Изпълнява се от строител с доказал се с множество качествено изградени и влезли в експлоатация сгради. Има все още избор на апартаменти и възможност за покупка на дворно паркомясто на цена от 15 000 евро. Сградата е с добър достъп, в непосредствена близост до основни пътни артерии, което я прави леснодостъпна и само на минути до центъра на града. Агенция Живена извършва необходимите проверки на имота, който сте избрали, организира всички етапи на сделката до нейното финализиране. Оказваме съдействие за отпускане на банков кредит. Оферта 7408Виж всички обяви в jivenavarna.bazar.bg или тук

Вход
Или
Все още нямаш профил?
Създай профил
1 / 5













2-стаен, Свети Никола, Варна
€124,760 / 244,009 лв.
(€2,012 / 3,936 лв. / кв.м)
Характеристики
квадратура
брой стаи
година на строеж
етаж
Особености на имота
- Затворен комплекс
- С паркомясто
Описание
Прочети още
Наблизо има
В непосредствена близост се намират:
Ресторант
Камелия396м
Паркинг
905м
Кафене
828м
Училища и детски градини
Детски градини
Начални
Основни
Средни
Име
Адрес
Ясла
Разстояние
Детска Градина №9 „Ален Мак" (Със Специални Групи)
без ясла
1,924м.
Ипотечен кредитен калкулатор
Варна Свети Никола Двустаен апартамент
