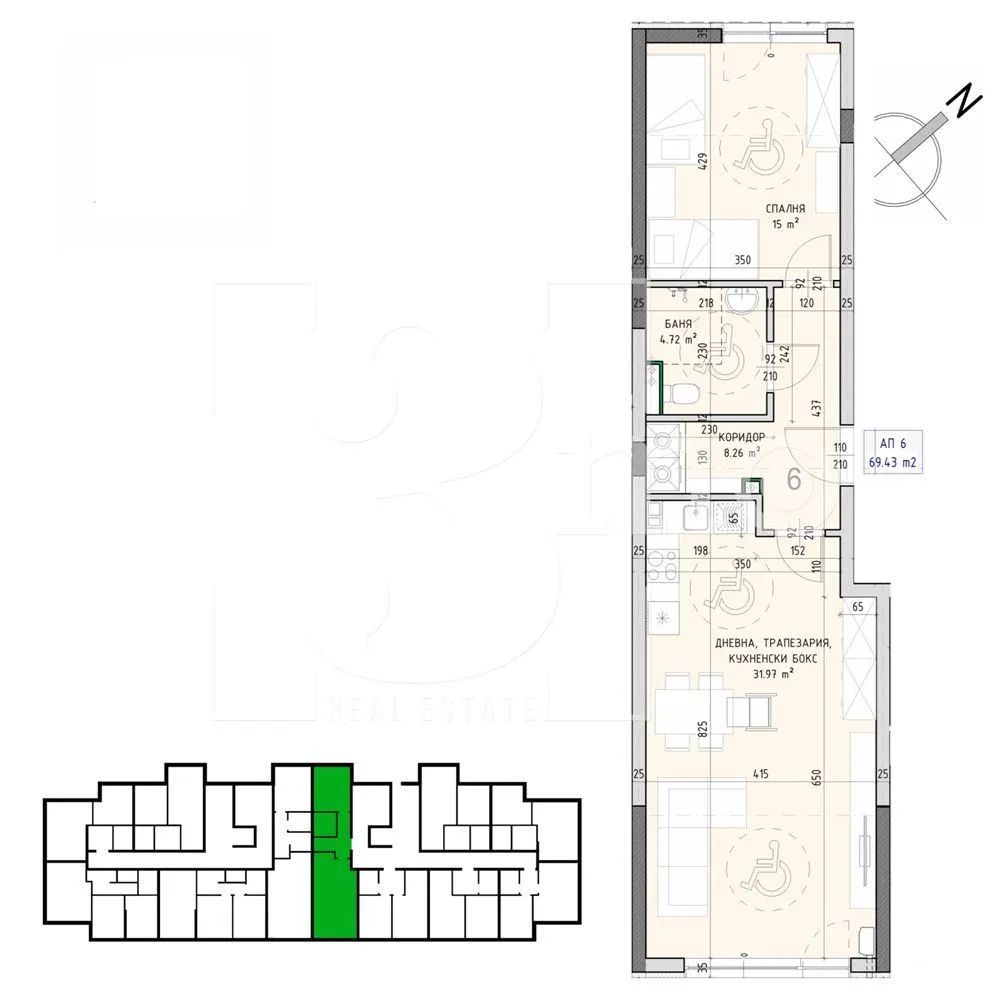
3mo Амалтея предлага за продажба двустаен тухлен апартамент на партерен етаж, в новострояща се луксозна жилищна сграда в ж.к. Малинова долина, в близост до бул. Околовръстен път.РЗП на апартамента - 79кв.м. и ЗП 70 кв.м.+38 кв.м. двор. Разпределението на апартамента е както следва: просторен хол с кухненски бокс и трапезария , спалня , двор, баня с тоалетна, склад.Апартаментът се издава на шпакловка и замазка с троен стъклопакет PVC дограма в цвят антрацид, висок клас блиндирана входна врата с модерен дизайн в цвят сив дъб. . Сградата има луксозни общи части и асансьор от висок клас с марка ORONA. Има видео наблюдение и контрол на достъп.Сградата разполага с общо 39 апартамента, всеки от които е със светли и функционални помещения. Има възможност за покупка на гараж или паркомясто. Към сградата ще има богато озеленена градина с обособени зони за отдих, детска площадка и заграждение за кучета.Кварталът се намира в южната част на София, в подножието на планината. Сградите са с отлично местоположение. В непосредствена близост са разположени молове, хипермаркети, детска градина. Налична е бърза транспортна връзка с главни столични булеварди.Етап на строителство - Разрешение за строеж .Цената на имота е съобразена със схемата на плащане.За повече информация се обадете на тел: 0889984448Получете най-добрата оферта за ипотечен кредит с Агенция ТРИМО и лицензиран кредитен посредник КРЕДИТ НАВИГАТОР. Услугата е безплатна.
1 / 1









2-стаен, Симеоново, София
€175,935 / 344,099 лв.
(€2,227 / 4,356 лв. / кв.м)
Характеристики
квадратура
брой стаи
Особености на имота
- Просторно жилище
- С гараж
- С паркомясто
Описание
Прочети още
Транспорт
Най-близки спирки на градски транспорт до адреса:
Метро
Автобусни линии
Трамвайни линии
Училища и детски градини
Детски градини
Начални
Основни
Средни
Име
Адрес
Ясла
Разстояние
Ипотечен кредитен калкулатор
София Симеоново Двустаен апартамент
Зареждаме...
