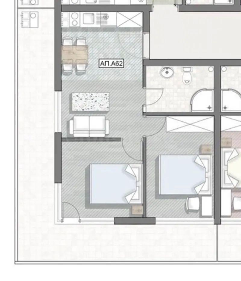
Facebook Pixel 3-стаен в Южна България за 65,200€ - Zimoti
Logo