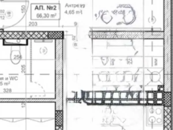
Facebook Pixel 3-стаен в Пловдив за 278,800€ - Zimoti
Logo