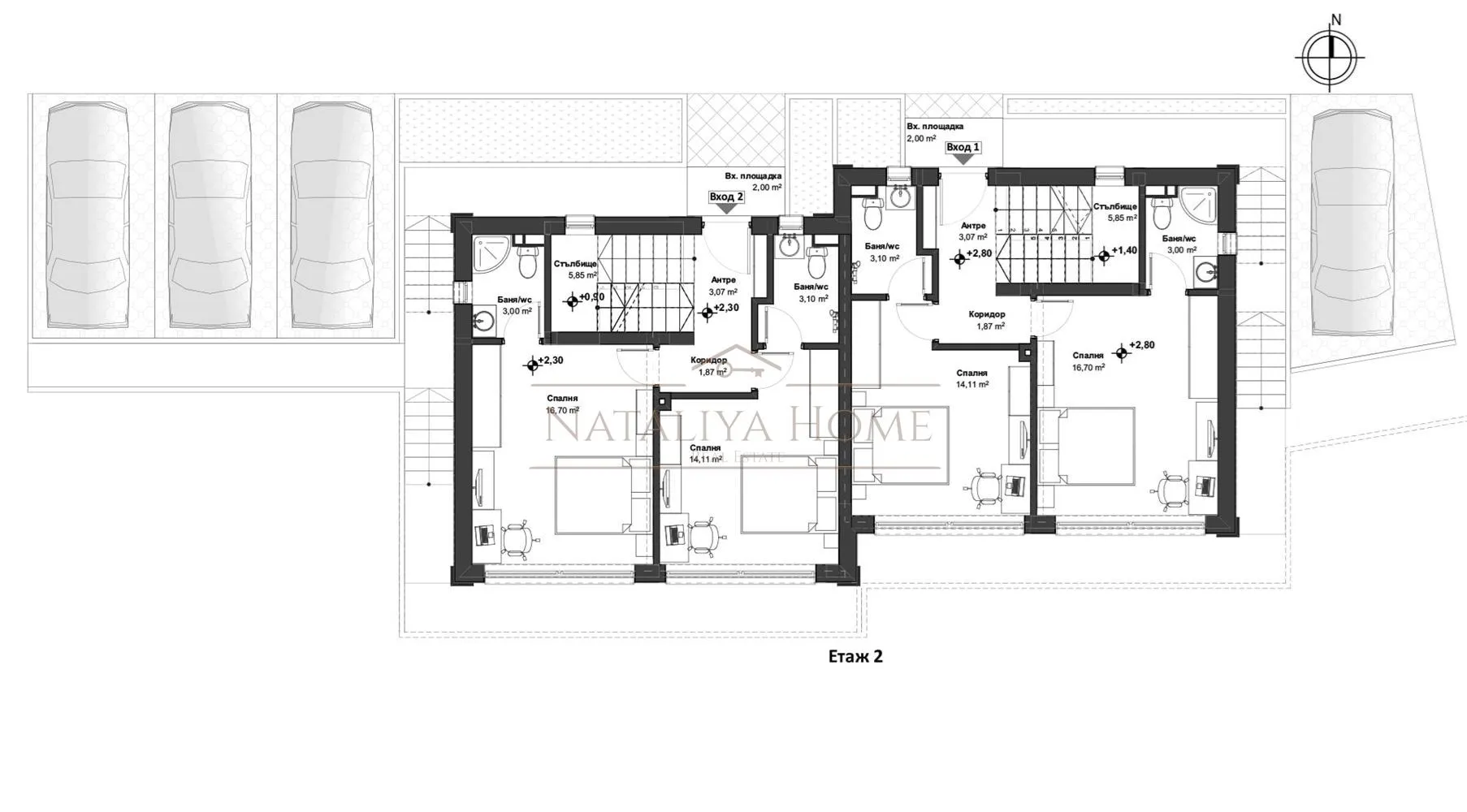
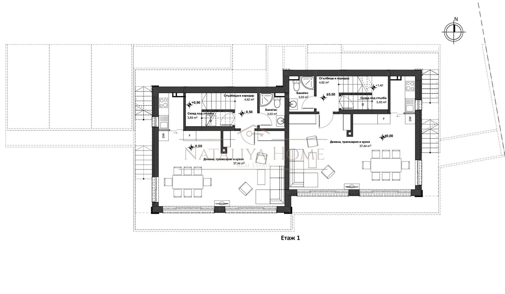
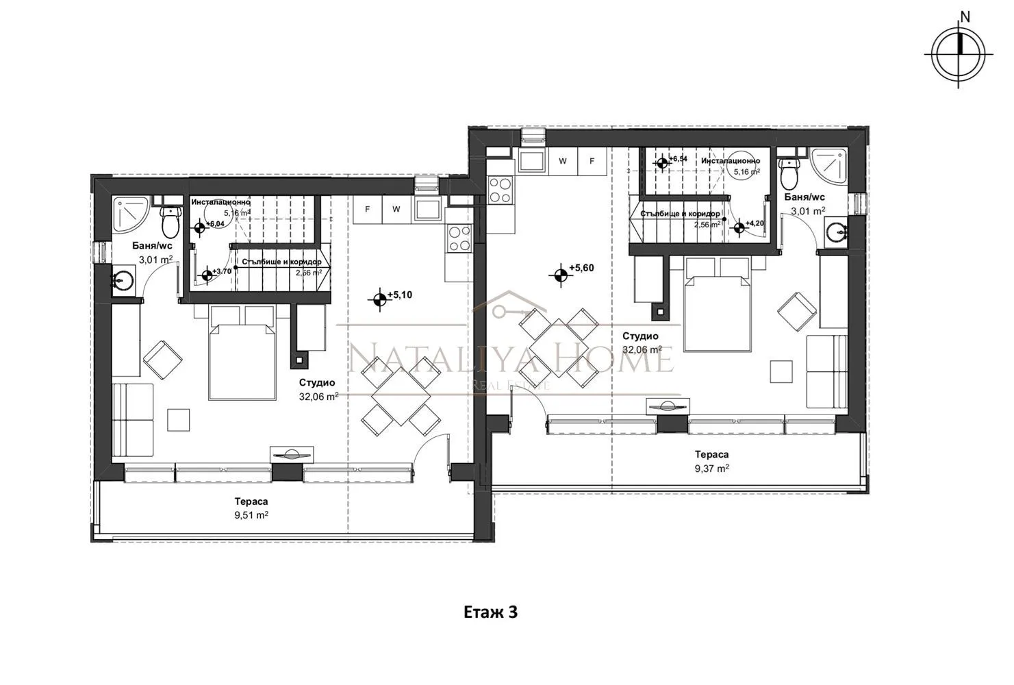
Предлагаме за продажба две бутикови новостроящи се къщи в тихата и зелена местност на кв. Ветрен, гр. Бургас – локация, която съчетава спокойствие и отлична свързаност с града.Районът е предпочитан заради чистия въздух, бързия достъп до центъра и плажа (20 минути), близостта до болница „Дева Мария“ (3 минути) и минералните извори с парк (3 минути).Всяка от къщите е напълно независима, със собствен вход, двор и индивидуално разпределение.Къща 1 разполага с 230 кв.м двор и 181 кв.м РЗП.Къща 2 предлага 215 кв.м двор и 181 кв.м РЗП.Разпределението е идентично и изключително практично:Първи етаж – 60.24 кв.м: просторна дневна зона с трапезария и кухня, баня с тоалетна и голяма веранда към двора.Втори етаж – 60.24 кв.м: две самостоятелни спални, всяка със собствена баня и тоалетна.Трети етаж – 60.54 кв.м: голяма родителска спалня с баня и тоалетна, както и просторна тераса с гледка към околността.Модерната и изчистена архитектура, големите прозорци и обилната естествена светлина създават усещане за простор и комфорт.Проектирани са с внимание към детайла и предлагат функционални вътрешни решения, осигуряващи уединение и удобство за всяко семейство.Към всяка къща са включени по две удобни и сигурни паркоместа.Тези два имота представляват отличен избор за семейства, които търсят комфорт, модерна визия, самостоятелност и близост до природата, без да се лишават от удобствата на града.Имотите са подходящи както за инвестиция, така и за бъдещ дом.

Вход
Или
Все още нямаш профил?
Създай профил
1 / 8



















Къща, Ветрен, Бургас
€255,000 / 498,737 лв.
(€1,409 / 2,756 лв. / кв.м)
Характеристики
квадратура
година на строеж
Особености на имота
- Популярен квартал
- Детски градини
Описание
Прочети още
Училища и детски градини
Детски градини
Начални
Основни
Средни
Име
Адрес
Ясла
Разстояние
Ипотечен кредитен калкулатор
Бургас Ветрен Къща
