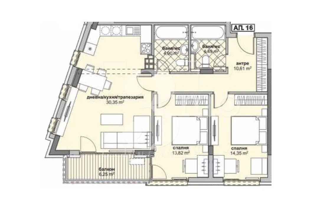
3mo Амалтея има удоволствието да ви предложи тристаен непреходен апартамент в модерна жилищна сграда в ж.к. Люлин 6. Предложеният имот е с обща площ от 117,80 кв.м. (застроена 100,42 кв.м.) и се състои от: входно антре (10,61 кв.м.), просторна всекидневна с кухненски бокс и трапезария (30,35 кв.м.) с балкон (6,25 кв.м.), две непреходни южни спални (13,82 кв.м. и 14,35 кв.м.) и две санитарни помещения (4,49 кв.м и 4,90 кв.м.). Апартаментът е разположен на четвърти от общо девет етажа. Има изложение юг и запад. Жилищната сграда се намира в начален етап на строителство. Планирано Разрешение за ползване 2026 година. Към имота има складово помещение (4,06 кв.м.) разположено на ниво сутерен. Отделно може да се закупи паркомясто или гараж. Инвеститорът на проекта има дългогодишен опит в строителството на жилищни сгради в град София. В строителството използва материали от висок клас и съвременни технологии на изпълнение. Локацията на сградата е отлична. Намира се в непосредствена близост до Западен парк, което предоставя отлична възможност за организиране на ежедневни разходки в парка. От прозорците на сградата се открива красива гледка към планината Витоша. Районът има добри транспортни връзки и отлична инфраструктура.
За повече информация и организиране на огледи, моля свържете се с нас на посочените телефони!
Оферта № Z-694
3mo Амалтея, заедно с лицензирания в БНБ кредитен посредник КРЕДИТ НАВИГАТОР предоставят на своите клиенти възможност да изберат най-изгодният ипотечен кредит при закупуване на своето жилище. Услугата е БЕЗПЛАТНА.
1 / 2









3-стаен, Люлин 6, София
€189,024 / 369,699 лв.
(€1,602 / 3,133 лв. / кв.м)
Характеристики
квадратура
брой стаи
година на строеж
етаж
Вид строителство
Особености на имота
- Южно изложение
- Просторно жилище
- С гараж
- С паркомясто
- Детски градини
- В близост до парк
- Желан имот
- Асансьор
- Саниран блок
Описание
Прочети още
Транспорт
Най-близки спирки на градски транспорт до адреса:
Метро
Автобусни линии
Трамвайни линии
8
Училища и детски градини
Детски градини
Начални
Основни
Средни
Име
Адрес
Ясла
Разстояние
Ипотечен кредитен калкулатор
София Люлин 6 Тристаен апартамент
Зареждаме...
