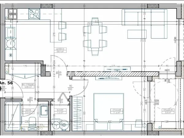
Предствяме ви просторен, слънчев и функционален двустаен апартамент. Жилището се състои от дневна с кухненска част 29 кв.м., спалня 11 кв.м., лоджия 5 кв.м., баня/тоалет. Имот подходящ както за живеене, така и за инвестиция! С опция за покупка на паркомясто! Новострояща се сграда на доказан строител. Удобна схема за разсрочено плащане.
Изключително комуникативен район. В близост до търговски обекти, автобусни спирки и т.н.
Адрес предлага новострояща се сграда на 12 етажа от които 10 жилищни и един подземен етаж - паркинг , два входа! Апартаментите са 89 на брой.
- Простор;
- Комуникации;
- Цена;
- Качество.
Обади се сега и цитирай този код Z-657517



