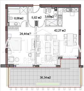
Агенция за недвижими имоти ATLANTA предлага за продажба Стилен двустаен апартамент в к.к.Св.Св.Константин и Елена.Луксозен комплекс на самия бряг на морето!Код на оферта: Z-V-4507📐 Площ: 165 кв.м (застроена 98,17 кв.м)🏢 Етаж: 4 от 8🛋️ Обзавеждане: Дизайнерско, луксозно📦 Изба: 12,91 кв.м✨ Разпределение:– Просторно входно антре– Светла дневна с кухня – 42 м²– Голяма тераса – Спалня 24 м² със собствена баня– Втора баня и коридор🏡 Имотът е с модерен интериор, висок клас довършителни работи и е идеален както за целогодишно живеене, така и за ваканционно ползване.Комплексът предлага множество удобства, зелени площи, сигурност и комфорт.📍 Локация:– 15 минути до центра на Варна.📲 Свържете се с нас за оглед и повече информация и цитрайте кода на оферта!

Вход
Или
Все още нямаш профил?
Създай профил
1 / 4











2-стаен, Траката, Варна
€448,219 / 876,640 лв.
(€2,716 / 5,312 лв. / кв.м)
Характеристики
квадратура
брой стаи
година на строеж
етаж
Особености на имота
- Просторно жилище
- Популярен квартал
Описание
Прочети още
Наблизо има
В непосредствена близост се намират:
Бар
Крис820м
Училища и детски градини
Детски градини
Начални
Основни
Средни
Име
Адрес
Ясла
Разстояние
Ипотечен кредитен калкулатор
Варна Траката Двустаен апартамент
