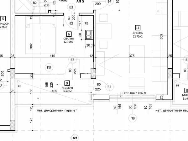
Двустаен апартамент със застроена площ от 55,13 кв.м.(с общи части 64,21 кв.м.). Жилището е проектирано с дневна с кухненски бокс, спалня, баня с тоалетна и тераса. Изложението е изцяло южно. Намира се на втори надпартерен етаж, кота +5,40 м. Към апартамента има мазе с площ от 2,08 кв.м.
Намира се в близост до парк, на 5 минути пешеходно разстояниe до бул."Ломско шосе" и метростанция "Хан Кубрат".
Многофамилна жилищна сграда в близост до парк и метро! Изключително добър вариант като съчетание на качество, цена и локация. Три варианта на заплащане на имотите в сградата, съобразени с възможностите на купувачите.
Сградата е с Разрешение за строеж . Ще бъде завършена в срок от 2 години след започване на строителните работи.
Сградата е проектирана на 4 жилищни етажа, на които са разположени 10 апартамента и един партерен етаж - с 8 гаража, както и 2 външни паркоместа.
Сградата ще бъде изпълнена по следния начин:
1. вътрешни стени и тавани на апартаменти - гипсова машинна мазилка „RÖFIX" или друга с подобно качество
2. Подове на апартамент - циментова замазка
3. Бани и тоалетни:
• Под - циментова замазка;
• Стени варо-циментова мазилка, „RÖFIX" или друга с подобно
качество;
• таван - варо-циментова мазилка, „RÖFIX" или друга с подобно качество
4. врати:
• входна врата на сградата - метална с ел. контрол на достъпа
• входна врата на апартаменти - метална, блиндирана
5. Балкони, тераси - под - мразоустойчиви гранитогресни плочи, парапет - по проект:
6. Външна дограма - PVC със стъклопакет, 5 камерна
7. Ел. инсталация - завършена, окомплектована - разделена по кръгове, със съответните силови проводници. 3ахранващ кабел, осигуряващ и мощност за монтаж на климатична инсталация, монтаж на ел. табла. тип "апартаментен" с автоматични предпазители, дефектно-токови защити, монтаж на ключове и контакти. Монтаж на фасонки и ел.крушки по БДС;
8. Звънчева - домофонна инсталация - завършена, монтаж на домофон;
9. Телевизионна и телефонна инсталации - с телефонен и телевизионен излаз в дневните, интернет окабеляване;
10. ВиК - изпълнени съгласно проекта
11. Фасади - изцяло завършени по проект
12. Други общи части - изцяло завършени, стълбища, площадки, коридори и фоайета - по проект с качествени материали
13. Асансьор с напълно автоматични врати
14. вертикална планировка - изцяло завършена съгласно проекта
15. Външно захранване на сградата с ел. енергия, вода
- до метро и парк;
- гъвкави варианти на заплащане и цена;
Обади се сега и цитирай този код Z-675327




