Модерна жилищна сграда в Овча Купел 2, част от мащабен комплекс с обща визия и инфраструктура, от инвеститор с доказано качество на строителство и солидна репутация на пазара. Стилен дизайн и функционални разпределения, разположен в предпочитан район с удобна градска инфраструктура.
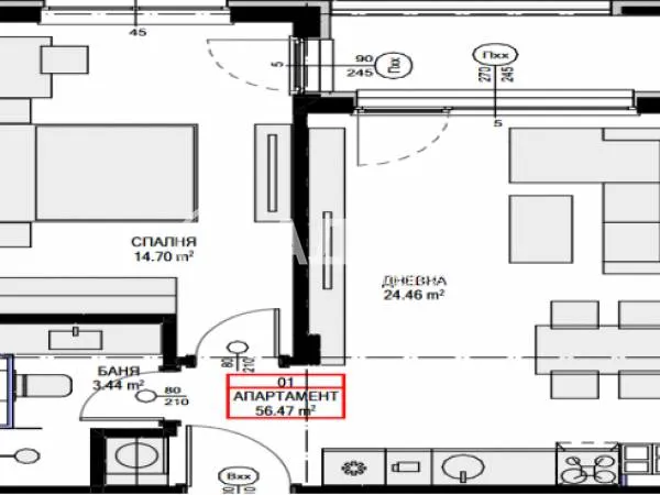
Двустайно жилище със северно изложение, състоящ се от антре, дневна с
кухненски бокс, спалня, баня с тоалетна и тераса.
Сградата се намира на пешеходно разстояние от НБУ и метростанция "Мизия".
Сграда от 3 входа, на 9 етажа. Богат избор от жилища с една или две спални. Възможност за обединение. Отопление на газ. Към всеки апартамент има прилежащо мазе или склад.
Контролиран достъп, асансьор и висок клас дограма.
Обади се сега и цитирай този код Z-680861




