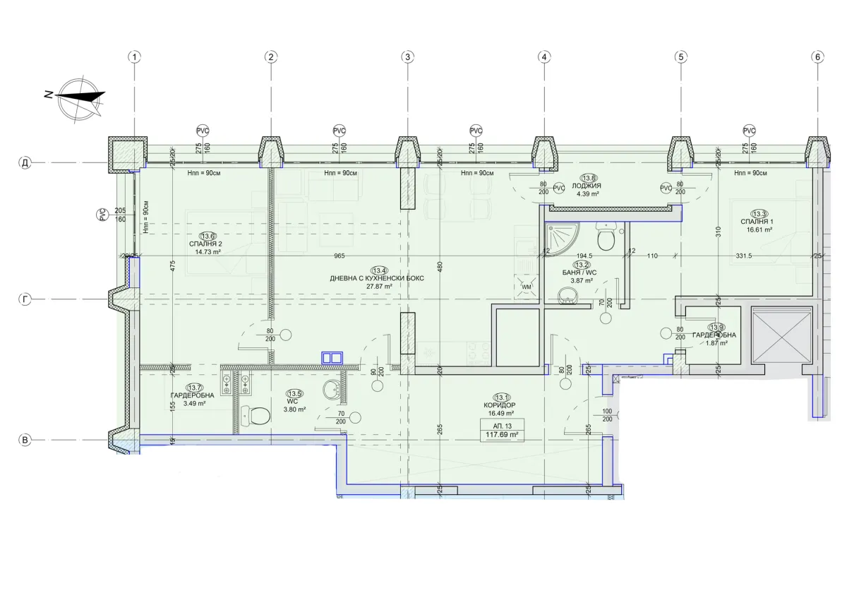
Агенция Столица Инвест предлага на Вашето внимание продажба на 3-стаен апартамент в кв. Здравец Изток град Русе. Имотът е с площ 148 кв.м. и е ситуиран на ет. 4 от общо 8 с асансьор. Апартаментът се състои от голям коридор, кухненски бокс с голяма и просторна дневна, две спални с гардеробни, лоджия и 2 бани с 2 тоалетни. Имотът се издава по БДС с възможност за доусъвършенстване от новите собственици. Сградата ще бъде готова края на 2025 година. Има и възможност за паркиране до блока. В близост до Мол Русе, Медицински Център Медика, хранителен магазин и главни пътни артерии.
Оферта: Z-A-1525371
За повече информация и оглед се свържете с нас на телефон 0876 08 13 09, 0877 633 111. Очакваме Ви!
1 / 1









3-стаен, Здравец, Русе
€130,000 / 254,258 лв.
(€878 / 1,717 лв. / кв.м)
Характеристики
квадратура
брой стаи
година на строеж
етаж
Вид строителство
Описание
Прочети още
Ипотечен кредитен калкулатор
Русе Здравец Тристаен апартамент
Зареждаме...
