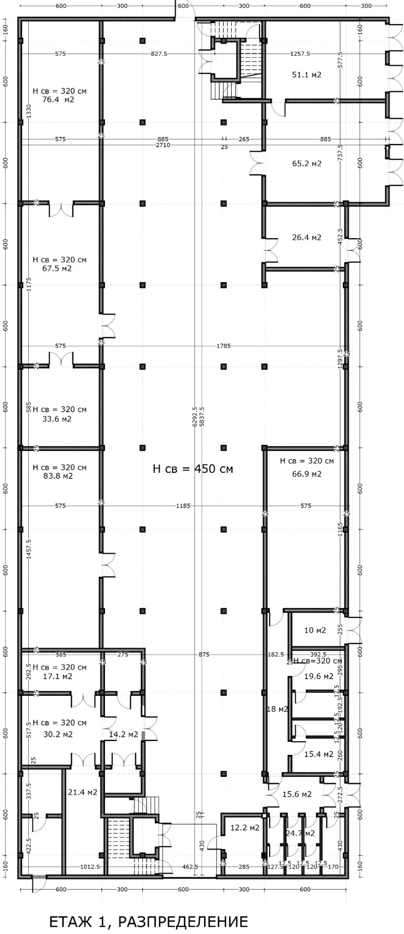
Отдава се под наем Производствено-складова сграда с ползване на дворно пространство за паркиране и маневриране. Имотът е разположен в района около бул. Рожен и ул. Илиянско шосе, с комуникативна транспортана локация и удобен градски транспорт. Сградата е в много добро общо състояние - удобна както за чисто производство, така и за складово-логистична дейност. Сградата се състои от два етажа:ПЪРВИ ЕТАЖ - 1540 кв.м. с височина около 4,50 м., разделено на работна зала, гараж с четири врати за товарни автомобили, една портална ролетна врата и два странични пешеходни входа, няколко по-малки работни помещения, отделение за служители /съблекални, санитарни възли, душове, трапезария/, два товарни асансьора за връзка с втория етаж с товароносимост до 1 тон. ВТОРИ ЕТАЖ - 760 кв.м. с височина около 3,20 м., състоящ се от много добре осветена работна зала с прозорци, два светли офиса /в двата края на етажа/ до стълбищните клетки и асансьорите. Товароносимостта на втория етаж е до половин тон.Сградата е масивна с тухлени стени. Подовете са шлайфан бетон. Отоплението на първия етаж е чрез локално парно с котел, а на втория етаж - с климатици. Въздуховоди с цялостна работеща вентилационна система.Сградата е захранена с трифазен ток. Наличен трафопост с обща мощност 800 kw., от които около 400 kw. за тази сграда.ПАРКИНГ с капацитет до около 15-20 автомобила и удобен достъп за товаро-разтоварна дейност. Наемна цена: 4,50 Евро на кв.м. без ДДС.

Вход
Или
Все още нямаш профил?
Създай профил
1 / 16



































Склад, Военна рампа, София
€10,350 / 20,243 лв.
(€5 / 9 лв. / кв.м)
Характеристики
квадратура
Особености на имота
- С гараж
Описание
Прочети още
Наблизо има
В непосредствена близост се намират:
Транспорт
Най-близки спирки на градски транспорт до адреса:
Метро
Автобусни линии
Трамвайни линии
Училища и детски градини
Детски градини
Начални
Основни
Средни
Име
Адрес
Ясла
Разстояние
Отдава се от: Агенция Международни Вложения И Консултации 
Още имоти от същата агенция Обади се: 0886395831
София Военна рампа Склад