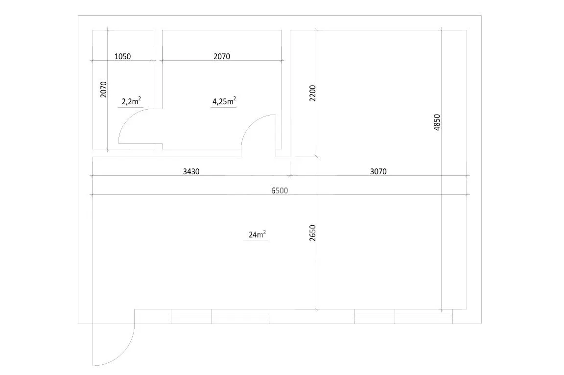
Primo+ недвижими имоти предлага офис под наем в двора на тухлена кооперация на ул. Брегалница.Разпределение:- работна стая;- складово помещение;- санитарен възел.Постройката е самостоятелна и офисът е след ремонт.Отопление - електричество.Наемна цена - 600 лева.Свободен за наемане от януари 2026 г.За допълнителна информация и огледи: Деница Илчева - тел. 0882 059 216. РАБОТИМ С КОЛЕГИ!!!

Вход
Или
Все още нямаш профил?
Създай профил
1 / 9





















Офис, Зоните, София
€307 / 600 лв.
(€10 / 20 лв. / кв.м)
Характеристики
квадратура
година на строеж
Особености на имота
- Детски градини
Описание
Прочети още
Наблизо има
В непосредствена близост се намират:
Бар
Thin Red Line549м
Банкомат
177м
Ресторант
Контеса102м
Аптека
37м
Паркинг
Mall of Sofia Parking414м
Кафене
Coffee & Go227м
Транспорт
Най-близки спирки на градски транспорт до адреса:
Метро
Автобусни линии
Трамвайни линии
22
20
21
22
20
21
Училища и детски градини
Детски градини
Начални
Основни
Средни
Име
Адрес
Ясла
Разстояние
София Зоните Офис
