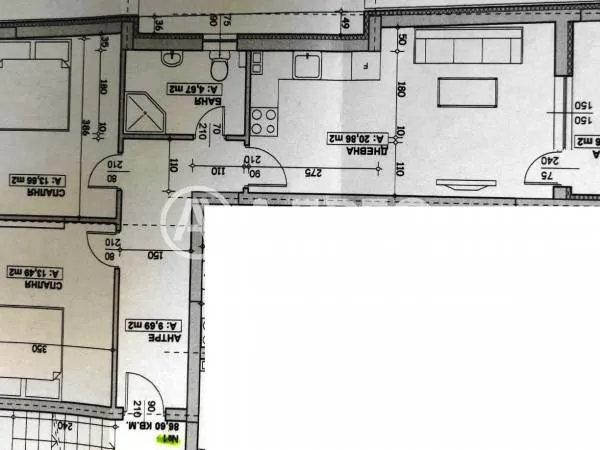
Facebook Pixel 3-стаен в Благоевград за 129,750€ - Zimoti
Logo