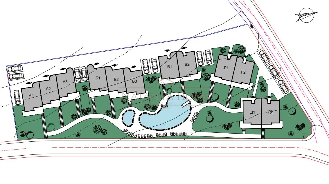
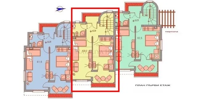
Продаваме триетажна къща завършена до ключ в престижен район на Созопол - местност БуджакаКъщата е с разгъната застроена площ от 173,12 кв.м, разположена в модерен жилищен комплекс само на 500 метра от плаж „Каваците“ и на 2 км от Созопол. Комплексът предлага комфорт, сигурност и удобства, съчетавайки спокойствието на морския бряг с удобството на градската инфраструктура. Къщата е с изложение изток–запад и следното функционално разпределение:- Първи етаж: входно антре, складово помещение, просторна всекидневна с кухненски бокс и трапезария, тоалетна и тераса.- Втори етаж: две спални, баня с тоалетна и две тераси.- Трети етаж: голяма спалня с баня и тоалетна и две тераси.Имотът ще бъде завършен „до ключ“ с висококачествени материали: шпакловани и боядисани стени и тавани в светли, неутрални тонове, подови настилки от първокласен гранитогрес, монтирани интериорни врати и блиндирана входна врата, напълно оборудвани бани с фаянс, теракота, санитария и душ-системи, монтирани осветителни тела във всички общи части и тераси, изградена ВиК инсталация и поставени климатици.Комплексът ще предлага контрол на достъпа, видеонаблюдение на общите части, обособени паркоместа и плувен басейн, предназначен за ползване от собствениците и техните гости.Местоположението е изключително привлекателно – в близост до плаж с фин пясък и чиста морска вода, на няколко минути от античния град Созопол и в удобна връзка с летище Бургас.Мекият климат, дългото лято и спокойната среда правят имота подходящ както за целогодишно живеене, така и за ваканционен дом или инвестиция с потенциал за отдаване под наем.Това е вашият шанс да притежавате модерен морски дом в един от най-живописните райони на Южното Черноморие.В момента е на Акт 14, Акт 16 се очаква до август 2026 година.

Вход
Или
Все още нямаш профил?
Създай профил
1 / 10























Къща, Несебър, Югоизточна България
€432,800 / 846,483 лв.
(€2,502 / 4,893 лв. / кв.м)
Характеристики
квадратура
година на строеж
Описание
Прочети още
Училища и детски градини
Детски градини
Начални
Основни
Средни
Няма намерени детски градини