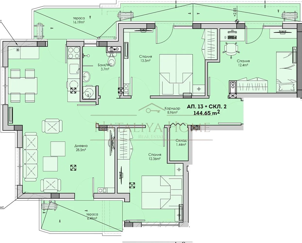
Facebook Pixel Многостаен в Бургас за 188,045€ - Zimoti
Logo